Kadaň - Strážiště

ZASTAVOVACÍ PLÁN S PRVKY REGULACE

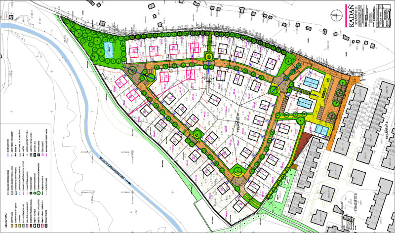
Strážiště je jedním z vrchů kolem Kadaně, za kterým se nalézá menší rozvojová plocha podobná svou polohou Jihovýchodnímu předpolí (viz ÚP a RGP Kadaň). Jeho poloha je na jednu stranu zvýhodněna větší blízkostí řeky a přitékajícího potoka na jihozápadě, na druhou ale znevýhodněna optickým kontaktem s elektrárnou Prunéřov na severu.

Záměr města byl zainvestovat pozemky pro následný prodej, ale vzhledem k ještě staré metodice Stavebního zákona nebylo výhodné zpracovat tak malou lokalitu regulačním plánem. Před započetím prací byl upraven Územní plán, který přesunul pozemky pro veřejné stavby k nově navržené konečné stanici MHD přibližně uprostřed zájmového území, u níž bylo vytvořeno i smíšené území pro restauraci a služby. Na severním konci byly ponechány sportovní plochy jako přirozený přechod do krajiny.

Výsledný návrh nakonec zjednodušil obsluhu území vytvořením velké smyčky využívající terénní modelaci, celou ve formě zklidněné obytné ulice se stromy a veřejnými prostory při kříženích a na ohybech.

Celý návrh byl předložen k územnímu řízení, ale realizace ještě neproběhla.

zvětšit zvětšit zvětšit zvětšit